Active MLS# 26012185 7 Days on Market

105 Worthington Circle, 34, Unincorporated, MO 63128

Subdivision: Villas At Worthington A Condo

List Price: $389,900

3

Bedrooms

3

Baths

1,953

Area (sq.ft)

$N/A

Cost/sq.ft

1.5 Story

Type

Description

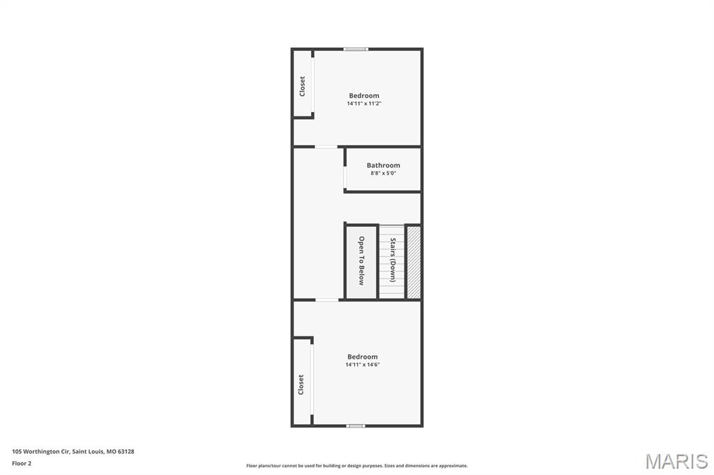
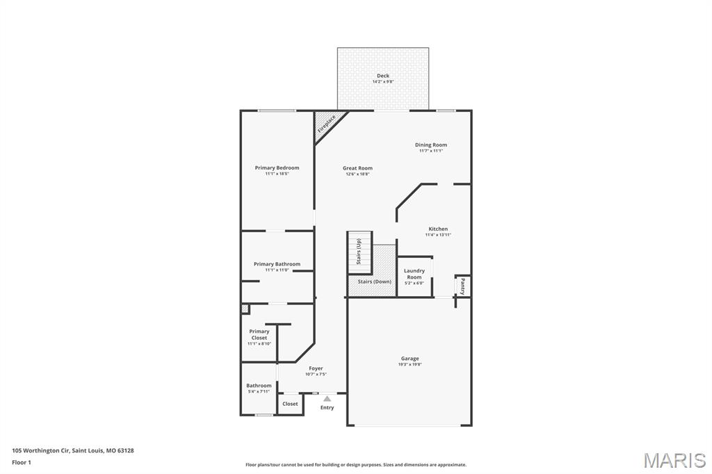
Opportunity knocks to own this spacious 3 bedroom, 2.5-bathroom villa in a superb location!! This 1 1/2 story villa offers an incredible amount of space and a wonderful floor plan!! The main floor hosts a spacious primary suite, with a generous walk-in closet and an ensuite bath with a garden tub, double sinks and a separate walk-in shower!! The main floor includes 9ft ceilings, a large open kitchen with abundant cabinet storage and overlooks the dining room and great room which features a gas fireplace and sliding glass doors leading to a private deck! Upstairs has 2 spacious bedrooms and an additional full bathroom along with a loft area! A walkout lower level with 9ft+ ceilings and a bathroom rough-in provides ample customizable space to finish, if you desire! This wonderful villa offers high efficiency furnace, convenient main floor laundry (washer and dryer stay!), an upgraded electrical panel with whole house surge protector, and 220V electric in the garage ready for your EV!! This villa allows you the benefits of maintenance free living in a prime South County location!!

Property Information

List Price $ 389,900
Original Price $ 389,900
Status Active
MLS# 26012185
Bedrooms 3
Full baths 2
Half baths 1
Main Floor Full Baths 2
Sq. Ft. Above 1,953
Lot Size 0
Acres 0
Subdivision Villas At Worthington A Condo
Municipality Unincorporated
School District Lindbergh Schools
County St Louis
Property Type Residential
Style 1.5 Story
Style Description
Transaction Type
Special Conditions Standard
Type
Building Exterior Amenities Common Ground,Outside Management
Building Style Traditional
Ownership
Special Description Standard
Appliances Some
Miscellaneous
Disclosures Occupancy Permit Required
Age 0
Sewer Main Size Public Sewer
Water Main Size Public
Conditions Occupancy Permit Required

Additional Information

Elementary School Kennerly Elem.
Jr. High School Robert H. Sperreng Middle
Sr. High School Lindbergh Sr. High
Association Fee $410 /Monthly
Architecture Traditional
Construction Brick Veneer,Vinyl Siding
Garage Spaces 2
Carport Spaces 0
Basement Description 9 ft + Pour,Bath/Stubbed,Concrete,Egress Window,Walk-Out Access
Fireplace Type Gas Log
Fireplace Location
Lot Dimensions
Special Areas
Cooling Central Air
Sewer Public Sewer Sewer
Heating Forced Air,Natural Gas
Water Public
Heat Source
Kitchen
Appliances
Dining
Interior Decor
Property Tax $4,174

Map Location

Listing Courtesy of Homecoming Realty, LLC - [email protected]